1. Sanitärcontainer
Sanitärcontainer (Duschcontainer, WC-Container) werden immer mit Ausstattung geliefert. Die Aufteilung
und Ausstattung kann den Kundenwünschen angepasst werden.
...sehe auch
Sanitärausstattung
|
|
 |
|
2. Sanitärcontainer Typ L mit Sonderlackierung
Containergröße: 2989mm
x 2435mm x 2765mm (Rauminnenhöhe 2500mm)
Wandisolation: 100mm Mineralwolle
Innenwandverkleidung: Blech verzinkt, lackiert in RAL 9002,
matt
Standard Außenwandlackierung: RAL 9002.
Sonderlackierung gegen Aufpreis.
Abbildung mit Sonderlackierung
sehe Grundriss dazu >>>
|
|


|
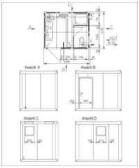
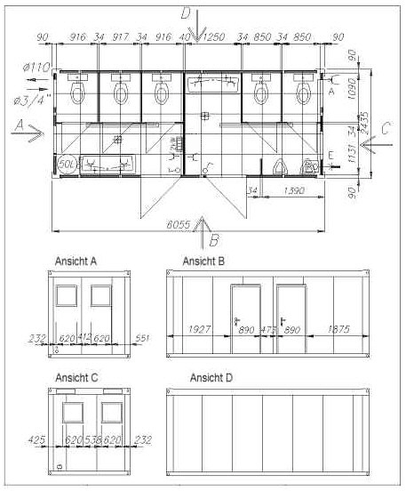
3. Sanitärcontainer 30`
Sanitärmodul besteht aus Damen WC, Herren
WC und Behinderten WC. Auf Wunsch kann eine Anfahrrampe für
Behinderte angebaut werden.
|
|
 |
4. Sanitärcontainer / Messetoilette
Durch die deutliche
Kennzeichnung ist der Container auf große Entfernung
sichtbar.
|
|
 |
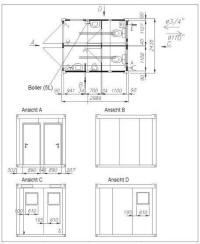
5. Fäkalientank für
10`Sanitärcontainer
mit integrierter Treppe oder mit
separaten Treppenelement lieferbar.
|
|
 |
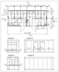
6. Fäkalientank
mit
Treppe für 20` Container
Auf Wunsch kann der Fäkalientank geteilt
werden: 1 Teil - Fäkalientank, 2 Teil - Frischwassertank.
|
|
 |
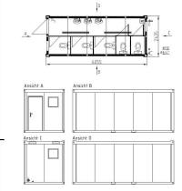
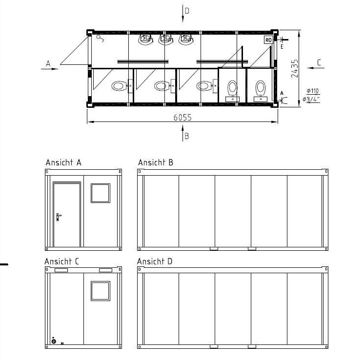
7. WC-Container 10'
Dieser Toilettencontainer 10' besteht aus 2 Räumen: WC Damen und
WC Herren.
Wandisolation: 100mm Mineralwolle
Innenwandverkleidung: Blech verzinkt, lackiert in RAL 9002,
matt
Standard Außenwandlackierung: RAL 9002.
Sonderlackierung gegen Aufpreis.
Abbildung mit Sonderlackierung
sehe Grundriss dazu >>>
|
|



|
8. WC-Container, Toilettenbox SC-1
-
Dach und Wände aus
verzinkten Trapezblechen.
-
Abmessungen (BxTxH): außen:
1400x1250x2425mm; innen 1300x1050x2300mm.
-
Abwaschbare
Innenverkleidung und strapazierfähiger Bodenbelag.
-
Doppelwandige Tür
(875x2000mm) mit Sicherheitsschloss.
-
Kippfenster über der Tür
für natürlichen Lichteinfall und Belüftung.
-
1 Tiefspülklosett mit
Spülkasten.
-
1 Eckwaschbecken mit
Seifenablage.
-
1 Toilettenpapierhalter.
-
1 Kleiderhaken.
-
1 Handtuchhalter.
-
Boxen mit 3/4“
Wasseranschluss und Abwasserstutzen NW 100.
-
Aufstellfertig montiert.
optional
-
Außenwandlackierung.
-
Fäkalien-, Abwassertank (400l, Abmessungen (BxTxH) 1500x1500x180 mm).
-
Zweipunkt-Kranaufhängung für einfachen Ortswechsel.
|
|

Abbildung mit Außenlackierung |
9. WC-Container,
Toilettenbox SC-2
-
Dach und Wände aus
verzinkten Trapezblechen.
-
Abmessungen (BxTxH): außen: 1400x1250x2425mm;
innen: 1300x1050x2300mm.
-
Abwaschbare Innenverkleidung und
strapazierfähiger
Bodenbelag.
-
Doppelwandige Tür (875 x2000 mm) mit
Sicherheitsschloss.
-
Kippfenster über der Tür für natürlichen Lichteinfall und
Belüftung.
-
1 Tiefspülklosett mit
Spülkasten.
-
1 Eckwaschbecken mit
Seifenablage.
-
1 Toilettenpapierhalter.
-
1 Kleiderhaken.
-
1 Handtuchhalter.
-
Boxen mit 3/4“ Wasseranschluss und Abwasserstutzen NW 100.
-
Aufstellfertig montiert.
zusätzlich:1 Frischwassertank 160l zur Versorgung von
Toilettenspülung und Handwaschbecken.
optional:
-
Außenwandlackierung.
-
Fäkalien-, Abwassertank ist OPTIONAL. (400 l,
Abmessungen (BxTxH) 1500 x 1500 x 180mm).
-
Optional mit Zweipunkt-Kranaufhängung für einfachen Ortswechsel.
|
|

Abbildung mit Außenlackierung und Fäkalientank |
| 10. Sanitärcontainer 20
Fuß Damen / Herren WC |
|
 |
11. Sanitärcontainer 20
Fuß Damen WC /
Damen WC-Container |
|
 |
12. Sanitärcontainer 20
Fuß Herren WC /
Herren WC-Container |
|
 |
|
|
|
|
|
|
|