|
|
Grundrisse
Die im Folgenden dargestellten
Standard-Containermodule der Baureihe ST können in Ihrer Aufteilung und
Zusammenstellung beliebig verändert werden, sie dienen hauptsächlich der
Orientierung.
|
|
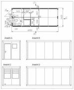
Typ A
Bürocontainer oder
Wohncontainer 20'

Außenmaße: L x B x H: 6055mm x 2435mm
x 2591mm (Rauminnenhöhe 2326mm) / oder 2765mm (Rauminnenhöhe 2500mm).
Ausstattung:
-
Grundelektrik
mit Verteilerkasten, 1St. Lichtschalter, 2St. Leuchtbalken 1x58W, 3St.
Steckdosen.
-
Wandisolation: 60mm Mineralwolle.
-
2St. PVC
Fenster 885/1370mm D/K mit Rollladen. 1St. Alu-Außentür 810/2000mm
Ohne Heizung. Außenfarbe RAL 9002.
|
Typ B
Bürocontainer,
Wohncontainer 20´ mit kleinem Windfang

Außenmaße: L x B x H: 6055mm x 2435mm
x 2591mm (Rauminnenhöhe 2326mm) / oder 2765mm (Rauminnenhöhe 2500mm).
Ausstattung:
-
Grundelektrik
mit Verteilerkasten, 2St. Lichtschalter, 2St. Leuchtbalken 1x58W, 1St. Lampe
60W, 3St. Steckdosen.
-
Wandisolation: 60mm Mineralwolle.
-
2St. PVC Fenster 885/1370mm D/K mit Rollladen. 1St. Alu-Außentür
810/2000mm, 1St. Innentür.
Ohne Heizung. Außenfarbe RAL
9002.
|
Typ C
Standardbürocontainer, Wohncontainer
20´ mit großem Windfang
Außenmaße: L x B x H: 6055mm x 2435mm
x 2591mm (Rauminnenhöhe 2326mm) / oder 2765mm (Rauminnenhöhe 2500mm).
Ausstattung:
-
Grundelektrik
mit Verteilerkasten, 2St. Lichtschalter, 2St. Leuchtbalken 1x58W, 1St. Lampe
60W, 3St. Steckdosen.
-
Wandisolation:
60mm Mineralwolle.
-
2St. PVC Fenster 885/1370mm D/K mit Rollladen. 1St. Alu Außentür 810/2000mm, 1St. Innentür.
Ohne Heizung. Außenfarbe RAL
9002.
|
|
Typ D
Bürocontainer, Wohncontainer 20´ mit
kleinem Windfang und WC-Raum

Außenmaße: L x B x H: 6055mm x 2435mm
x 2591mm (Rauminnenhöhe 2326mm) / oder 2765mm (Rauminnenhöhe 2500mm).
Ausstattung:
-
Grundelektrik
mit Verteilerkasten, 3St. Lichtschalter, 1St. Leuchtbalken 1x58W, 2St.
Lampen 60W, 3St. Steckdosen.
-
Wandisolation: 60mm Mineralwolle.
-
2St. PVC Fenster 885/1370mm D/K mit Rollladen.
-
1St. kl. PVC-Fenster 600/600mm D/K
-
1St. Alu-Außentür 810/2000mm, 2St. Innentür.
-
WC-Raum: WC und Waschbecken mit Zubehör.
Ohne Heizung. Außenfarbe RAL
9002
|
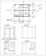
Typ E
Standardwohncontainer,
Aufenthaltscontainer 20´ mit Windfang und Nasszelle

Außenmaße: L x B x H: 6055mm x 2435mm
x 2591mm (Rauminnenhöhe 2326mm) / oder 2765mm (Rauminnenhöhe 2500mm).
Ausstattung:
-
Grundelektrik
mit Verteilerkasten, 3St. Lichtschalter, 1St. Leuchtbalken 1x58W, 2St.
Lampen 60W, 3St. Steckdosen.
-
Wandisolation: 60mm Mineralwolle.
-
2St. PVC Fenster 885/1370mm D/K mit Rollladen.
-
1St. kl. PVC-Fenster 600/600mm D/K
-
1St. Alu-Außentür 810/2000mm, 2St. Innentür.
-
Nasszelle: WC, Waschbecken, Dusche, Boiler 80L, Zubehör.
Ohne Heizung. Außenfarbe RAL 9002
|
|
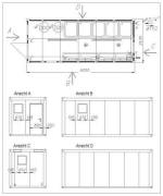
Typ F
Sanitärcontainer 20´ (Damen und Herren WC)

Außenmaße: L x B x H: 6055mm x 2435mm
x 2591mm (Rauminnenhöhe 2326mm) / oder 2765mm (Rauminnenhöhe 2500mm).
Ausstattung:
-
Grundelektrik
mit Verteilerkasten, 2St. Lichtschalter, 2St. Leuchtbalken 1x58W,
Steckdosen.
-
Wandisolation: 60mm Mineralwolle.
-
4St. kl. PVC-Fenster 600/600mm D/K
-
2St. Alu-Außentür 810/2000mm.
-
Sanitärausstattung: Damen WC: 3 WC-Kabinen,
Waschrinne, Boiler 50L. Herren WC: 2 WC-Kabinen, 2 Urinale, Waschrinne.
Ohne Heizung. Außenfarbe RAL 9002
|
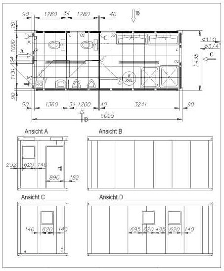
Typ G
Sanitärcontainer 20´ (Herren WC und
Duschraum)

Außenmaße: L x B x H: 6055mm x 2435mm
x 2591mm (Rauminnenhöhe 2326mm) / oder 2765mm (Rauminnenhöhe 2500mm).
Ausstattung:
-
Grundelektrik mit Verteilerkasten, 2St. Lichtschalter, 2St.
Leuchtbalken 1x58W, Steckdosen.
-
Wandisolation: 60mm Mineralwolle.
-
4St. kl. PVC-Fenster 600/600mm D/K
-
1St. Alu-Außentür 810/2000mm, 1St. Innentür.
-
Sanitärausstattung: WC-Raum: 2
WC-Kabinen, 2 Urinale, Waschbecken; Duschraum: 2 Waschrinnen, 2
St. Duschen, Boiler 300L.
Ohne Heizung. Außenfarbe RAL
9002.
|
Typ H
Sanitärcontainer, Duschcontainer 20´

Außenmaße: L x B x H: 6055mm x 2435mm
x 2591mm (Rauminnenhöhe 2326mm) / oder 2765mm (Rauminnenhöhe 2500mm).
Ausstattung:
-
Grundelektrik mit Verteilerkasten, 2St. Lichtschalter, 2St.
Leuchtbalken 1x58W, Steckdosen.
-
Wandisolation: 60mm Mineralwolle.
-
3St. kl. PVC-Fenster 600/600mm D/K
-
1St. Alu-Außentür 810/2000mm,
-
Sanitärausstattung: 5 Duschkabinen, 2 Waschrinnen, 2 Boiler je
300L.
Ohne Heizung. Außenfarbe RAL
9002.
|
|
|
Typ I
Bürocontainer 10´

Außenmaße: L x B x H: 2989mm x 2435mm
x 2591mm (Rauminnenhöhe 2326mm) / oder 2765mm (Rauminnenhöhe 2500mm).
Ausstattung:
-
Grundelektrik mit Verteilerkasten, 1St. Lichtschalter, 1St.
Leuchtbalken 1x58W, Steckdosen.
-
Wandisolation: 60mm Mineralwolle.
-
1St. PVC Fenster 885/1370mm D/K mit Rollladen.
-
1St. Alu-Außentür 810/2000mm.
Ohne Heizung. Außenfarbe RAL
9002.
|
Typ J
Sanitärcontainer 10´ (Damen WC)

Außenmaße: L x B x H: 2989mm x 2435mm
x 2591mm (Rauminnenhöhe 2326mm) / oder 2765mm (Rauminnenhöhe 2500mm).
Ausstattung:
-
Grundelektrik mit Verteilerkasten, 1St. Lichtschalter, 1St.
Leuchtbalken 1x58W, Steckdosen.
-
Wandisolation: 60mm Mineralwolle.
-
2St. PVC Fenster 600/600mm D/K.
-
1St. Alu-Außentür 810/2000mm.
-
Sanitärausstattung: 3 WC-Kabinen,
Waschrinne.)
Ohne Heizung. Außenfarbe RAL
9002.
|
Typ K
Sanitärcontainer 10´(Damen - Herren WC)

Außenmaße: L x B x H: 2989mm x 2435mm
x 2591mm (Rauminnenhöhe 2326mm) / oder 2765mm (Rauminnenhöhe 2500mm).
Ausstattung:
-
Grundelektrik mit Verteilerkasten, 2St. Lichtschalter, 2St.
Leuchtbalken 1x58W, Steckdosen.
-
Wandisolation: 60mm Mineralwolle.
-
3St. PVC Fenster 600/600mm D/K.
-
2St. Alu-Außentür 810/2000mm.
-
Sanitärausstattung: Damen WC: 1St.
WC-Kabine, Waschbecken; Herren WC: WC-Kabine, Urinalbecken,
Waschbecken.)
Ohne Heizung. Außenfarbe RAL
9002.
|
Typ L
Sanitärcontainer 10´
Sanitärcontainer 10´(Damen - Herren WC)

Außenmaße: L x B x H: 2989mm x 2435mm
x 2591mm (Rauminnenhöhe 2326mm) / oder 2765mm (Rauminnenhöhe 2500mm).
Ausstattung:
-
Grundelektrik mit Verteilerkasten, 2St. Lichtschalter, 2St.
Leuchtbalken 1x58W, Steckdosen.
-
Wandisolation: 60mm Mineralwolle.
-
2St. PVC Fenster 600/600mm D/K.
-
1St. Alu-Außentür 810/2000mm.
-
Sanitärausstattung: WC-Kabine,
Urinal, Duschkabine, Waschrinne, Boiler 80L
Ohne Heizung. Außenfarbe RAL
9002.
|
Typ M
Doppelcontainer

Besteht aus 2 Modulen je 20´
Ausstattung:
-
Grundelektrik mit Verteilerkasten, 1St. Lichtschalter, 4St.
Leuchtbalken 1x58W, Steckdosen.
-
Wandisolation: 60mm Mineralwolle.
-
4St. PVC Fenster 885/1370mm D/K mit Rollladen.
-
1St. Alu-Außentür 810/2000mm.
Ohne Heizung. Außenfarbe RAL
9002.
|
|
 
|
Typ N
Doppelcontainer mit kleinem Windfang

Besteht aus 2 Modulen je 20´
Ausstattung:
-
Grundelektrik mit Verteilerkasten, 2St. Lichtschalter, 4St.
Leuchtbalken 1x58W, 1 Lampe 60W, Steckdosen.
-
Wandisolation: 60mm Mineralwolle.
-
4St. PVC Fenster 885/1370mm D/K mit Rollladen.
-
1St. Alu-Außentür 810/2000mm, 1St. Innentür.
Ohne Heizung. Außenfarbe RAL
9002.
|
  |
|
|
|
|
|
|
|
|
|